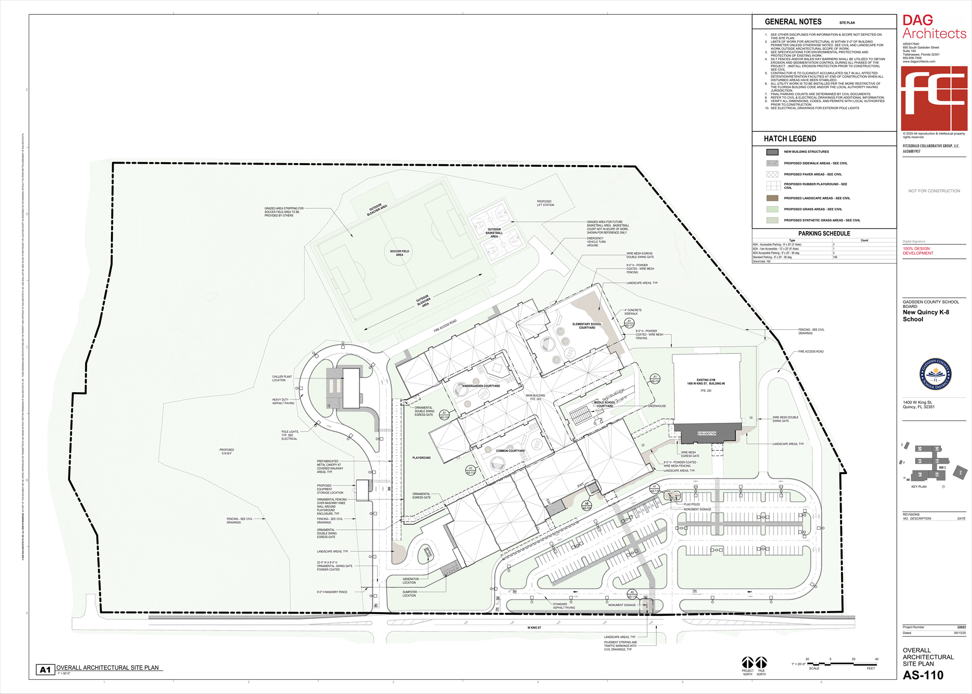
Welcome to Gadsden's Newest School!
The Gadsden County School District is proud to break ground on a new K–8 school at the former James A. Shanks site. As our first new construction project in over 20 years, this school is more than just a building—it’s an investment in academic excellence for our children. We are committed to an open, community-driven process and welcome your input to help us shape a school that truly represents the heart of Gadsden County.
.

